Y945H電動雙閥座蒸汽減壓閥

- 銷售:021-32051999
- 銷售:021-32050777
- 傳真:021-66099555
詳情介紹
- 產品介紹
- 服務承諾
- 訂貨流程
Y945H/Y電動雙閥座蒸汽減壓閥主要由閥體、閥座、閥瓣等零件組成,采用雙閥座、雙錐體閥瓣的結構。采用壓力平衡式閥瓣,通過閥瓣升降調節壓力可配用ZKZ-BC型或其它型直行程電動執行器實現遙控和自動控制。
Y945H/Y電動雙閥座蒸汽減壓閥的減壓比用到0.6較為合適。
Y945H/Y電動雙閥座蒸汽減壓閥主要用于蒸汽管路,調節壓力。廣泛應用在熱電聯產、輕紡、印染、石化、制糖等行業。
技術參數
公稱壓力(Mpa) | 1.6 | 2.5 | 4.0 | 6.4 | 10.0 | 16.0 |
殼體試驗壓力(Mpa) | 2.4 | 3.75 | 6.0 | 9.6 | 15.0 | 24 |
密封試驗壓力(Mpa) | 1.76 | 2.75 | 4.4 | 7.04 | 11.0 | 17.6 |
高進口壓力(Mpa) | 1.6 | 2.5 | 4.0 | 6.4 | 10.0 | 16.0 |
出口壓力范圍(Mpa) | 佳減壓比0.6 | |||||
滲漏量 | 0.5QMax | |||||
溫量-壓力等級 | ANSI B16.34 |
執行機構
公稱通徑 | 50 | 65 | 80 | 100 | 125 | 150 | 200 | 250 | 300 | 350 | 400 | 500 |
配執行機構型號 | ZKZ-310BC | ZKZ-410BC/ZKZ-510BC | ZKZ-510BC | ZKZ-610BC/ B+Z250/F1800 | ||||||||
行程 | 25 | 30 | 50/30 | 50 | 60 | 100 | ||||||
推力(N) | 4000 | 6400/1600 | 16000 | 2500 | ||||||||
全行程時間(S) | 20 | 32 | 37 | 62 | ||||||||
輸入信號 | 4-20mA DC | |||||||||||
供電電源 | 220V 50Hz | 380V 50Hz | ||||||||||
基本誤差() | ≤±2.5 | |||||||||||
基本誤差() | ≤±1.5 | |||||||||||
基本誤差() | ≤3 |
主要零件材料
零件名稱 | 零件材料 |
閥體 閥蓋 底蓋 | WCB |
閥座 | 304 |
閥瓣 | 2Cr13 |
閥桿 | 2Cr13 |
墊片 | 柔性石墨/1Cr18Ni9 |
導向套 | 2Cr13 |
填料 | 柔性石墨 |
螺栓 | 35CrMoA |
螺母 | 45 |
流量系數Cv
DN | 50 | 65 | 80 | 100 | 125 | 150 | 200 | 250 | 300 | 350 | 400 | 500 |
Cv | 15 | 20 | 35 | 60 | 70 | 110 | 150 | 230 | 420 | 540 | 710 | 1020 |
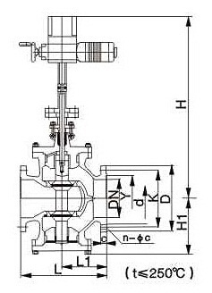
主要外形尺寸
PN1.6-4.0MPa
公稱通徑DN | 外 形 尺 寸 | |||
L | L1 | H | Hl | |
50 | 300 | 150 | 880 | 190 |
65 | 340 | 170 | 890 | 205 |
80 | 380 | 190 | 910 | 215 |
100 | 400 | 215 | 950 | 240 |
125 | 430 | 225 | 990 | 275 |
150 | 450 | 230 | 1090 | 320 |
200 | 500 | 260 | 1160 | 340 |
250 | 550 | 285 | 1230 | 370 |
300 | 750 | 395 | 1370 | 460 |
350 | 850 | 445 | 1450 | 530 |
400 | 950 | 550 | 1570 | 660 |
500 | 1130 | 680 | 1780 | 800 |
PN6.4-16.0MOa
公稱通徑DN | 外 形 尺 寸 | |||
L | L1 | H | Hl | |
50 | 300 | 150 | 880 | 200 |
65 | 340 | 170 | 890 | 215 |
80 | 380 | 190 | 910 | 225 |
100 | 400 | 215 | 950 | 250 |
125 | 430 | 225 | 990 | 285 |
150 | 450 | 230 | 1090 | 330 |
200 | 500 | 260 | 1160 | 355 |
250 | 550 | 285 | 1230 | 390 |
300 | 750 | 395 | 1370 | 480 |
350 | 850 | 445 | 1450 | 550 |
400 | 950 | 550 | 1570 | 700 |
500 | 1130 | 680 | 1780 | 820 |
良好的品質、優良的服務 奇高為你創造更多價值!
“奇高閥門”的期望,不斷提升服務質量,精益求精,“真誠的服務”是“奇高”永恒的主題。“奇高”嚴格按照IS09001-2000 質量體系認證要求,質量嚴格把關, 責任到人,確保生產、銷售、服務的健康運行。加強與用戶溝通,竭誠為廣大客戶提供優良產品,貼心服務。特此我廠做出以下承諾:
產品標準:
產品嚴格按照中國GB、HG 標準和美國API等標準設計、制造、驗收。密封面硬度達到國家規定要求,寬度超過國家標準。
售前服務:
產品介紹,技術交流,非標產品設計,疑難解答。
售中服務:
守信合同,及時供貨,隨時保持與客戶聯系。 對特殊或復制的產品,我廠安排技術人員對用戶進行產品使用、故障排除
售后服務:
1、“奇高”牌產品品質期為自出廠起12個月,實行“三包”服務(包退、包換、保修)。
2、產品在使用中我廠定期組織技術、質檢人員進行訪問,征詢用戶對產品質量、 使用狀況、改進意見等方面的反饋, 以便進一步提高產品質量。
3、對用戶投訴質量問題,快速作出反應,售后服務人員在24-36小時(省外48小時)趕赴現場。
4、對售后服務,要求用戶填寫服務后的質量反饋信息表,并作出鑒定意見,以便提高奇高的服務質量。
1、客戶如對產品有特殊要求,須在訂貨合同中提供以下說明:
a、結構長度;
b、連接形式;
c、公稱直徑、全通徑、縮徑、管道尺寸;
d、運行介質及溫度、壓力范圍;
e、試驗、檢驗標準及其他要求
2、本廠可根據客戶特定要求配置各類驅動裝置。
3、如由客戶提供確定的閥門類型和型號時,客戶應正確說明其型號的含義和要求,在供需雙方理解一致的條件下簽訂合同。
4、期貨、訂貨的客戶請先來電函詳細告訴所需的閥門型號、規格、數量以及交貨時間、地點,并按總的30%預定金或全額貨款及時匯入我廠帳戶,其余貨款待發貨前匯入,以便及時安排發貨。
訂單流程:
1、客戶采購清單傳真至021-33872143,或來電咨詢 021-33872141
2、收到客戶采購清單,為客戶提供閥門型號選型與報價(價格清單)。
3、具體商定:交貨期、特殊要求等事宜。
訂貨須知:
1、客戶如對產品有特殊要求,須在訂貨合同中提供以下說明:
|
|||||
|
|||||
2、本廠可根據客戶特定要求配置各類驅動裝置。
|
|||||
3、如由客戶提供確定的閥門類型和型號時,客戶應正確說明其型號的含義和要求,在供需雙方理解一致的條件下簽訂合同。
|
|||||
4、期貨、訂貨的客戶請先來電函詳細告訴所需的閥門型號、規格、數量以及交貨時間、地點,并按總的30%預定金或全額貨款及時匯入我廠賬戶, 其余貨款待發貨前匯入,以便及時安排發貨。
|
售中服務:
守信合同,及時供貨,隨時保持與客戶聯系。
對特殊或復制的產品,我廠安排技術人員對用戶進行產品使用、故障排除
售后服務:
1、“奇高”產品品質期為自出廠起12個月,實行“三包”服務(包退、包換、保修)。
2、產品在使用中我廠定期組織技術、質檢人員進行訪問,征詢用戶對產品質量、使用狀況、改進意見等方面的反饋,
以便進一步提高產品質量。
3、對用戶投訴質量問題,快速作出反應,售后服務人員在24-36小時(省外48小時)趕赴現場。
4、對售后服務,要求用戶填寫服務后的質量反饋信息表,并作出鑒定意見,以便提高“奇高”的服務質量。
聲明 |
|