ZSPQ氣動活塞快速切斷閥

- 銷售:021-32051999
- 銷售:021-32050777
- 傳真:021-66099555
詳情介紹
- 產品介紹
- 服務承諾
- 訂貨流程
ZSPQ氣動活塞切斷閥由切斷機構與氣動活塞執行機構組成。切斷機構采用直通單座形成,DN20閥芯為單導向,DN25~200閥芯為雙導向,具有結構簡單、操作方便、使用可靠、快速開閉等特點。主要應用于無雜質、無顆粒的液體、氣體介質,要求快速嚴密關閉,快速放空的自動控制系統中。
產品符合GB/T4213-92。
氣動活塞切斷閥 主要零件材料
零件名稱 | 材料 |
閥體、閥蓋 | ZG270-500、ZG1Cr18Ni9Ti |
閥桿、閥芯 | 1Cr18Ni9 |
密封填料 | V型聚四氟乙烯 |
密封墊 | 1Cr18Ni9夾石棉板 |
蝸桿 | 45 |
O型密封圈 | 耐油橡膠 |
壓縮彈簧 | 60Si2Mn |
支架 | HT270 |
蝸輪箱、蝸輪、氣缸、軸承蓋、活塞 | HT200 |
推桿 | 2Cr13 |
氣動活塞切斷閥 型號、規格
類別 | 軟密封 | 硬密封 | ||
常溫型 | 中溫型 | 高溫型 | 低溫型 | |
型號 | ZSPQ-40 | ZSPQ-40G | ZSPQ-40G | ZSPQ-40D |
規格 | DN20~200 |
氣動活塞切斷閥 執行機構
切斷機構
公稱通徑 mm | 20 | 25 | 32 | 40 | 50 | 65 | 80 | 100 | 125 | 150 | 200 | 250 | 300 | 350 | 400 |
閥座直徑 mm | 26 | 43 | 43 | 52 | 62 | 79 | 94 | 115 | 145 | 166 | 216 | 可與本公司 | |||
額定流量系數 Kv | 6.5 | 10 | 15 | 25 | 40 | 65 | 100 | 150 | 260 | 350 | 540 | ||||
公稱壓力 MPa | 4.0(JB/T79·2-94) | ||||||||||||||
行程 mm | 16 | 25 | 40 | 60 | |||||||||||
介質溫度 ℃ | -16~150(常溫);-60~450(中溫);-60~550(高溫);-250~60(低溫); | ||||||||||||||
流量特性 | 兩位快開式 | ||||||||||||||
配執行機構 | ZSD-D | ZSD-3 | ZSD-5 | ZSD-7 | |||||||||||
法蘭尺寸、型式 | 按JB/T79·2-94凹式(常、中、高溫);按JB/T79·3-94榫槽式(低溫) | ||||||||||||||
閥體材質 | ZG270-500;ZG1Cr18Ni9Ti;ZG0Cr18Ni12Mo2Ti |
活塞執行機構
型號 | ZSD-D | ZSD-3 | ZSD-5 | ZSD-7 |
活塞直徑 mm | 150 | 200 | 300 | 400 |
you效面積 cm2 | 175 | 305 | 700 | 1245 |
行程 mm | 16 | 25 | 40 | 60 |
進氣孔螺紋 | M16×1.5 | M20×1.5 | M24×2 | |
大輸出力 N | 7200 | 12800 | 29300 | 5200 |
可配附件 | 空氣過濾減壓器、保位閥、行程開關、閥位傳送器、電磁閥、手輪機構等 | |||
操作氣源壓力 KPa | 500 |
氣動活塞切斷閥 性能指標
公稱通徑 mm | 20 | 25 | 32 | 40 | 50 | 65 | 80 | 100 | 125 | 150 | 200 | |
泄漏量 | 軟密封 | 0 | ||||||||||
硬密封 | 1 | 3 | 5 | 7 | 9 | |||||||
切斷時間 S | 1~2 | 2~4 | ||||||||||
| +10 |
注:泄漏量試驗介質為水。
氣動活塞切斷閥 允許壓差
公稱通徑 mm | 20 | 25 | 32 | 40 | 50 | 65 | 80 | 100 | 125 | 150 | 200 | |
允許壓差 | 氣開 | 4.0 | 4.0 | 4.0 | 2.8 | 3.5 | 2.4 | |||||
氣關 | 4.0 | 2.5 | 1.7 | 1.0 | 1.1 | 0.8 | 0.6 |
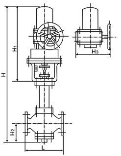
氣動活塞切斷閥 主要外形尺寸
常溫型
公稱 | L | H2 | 帶手輪 | 不帶手輪 | |||||
H | H1 | H3 | 重量kg | H | H1 | 重量kg | |||
20 | 180 | 53 | 662 | 447 | 222 | 39 | 574 | 359 | 26 |
25 | 190 | 111 | 732 | 46 | 644 | 33 | |||
32 | 210 | 117 | 744 | 48 | 656 | 35 | |||
40 | 230 | 131 | 885 | 570 | 280 | 85 | 778 | 463 | 61 |
50 | 255 | 146 | 915 | 89 | 808 | 65 | |||
65 | 285 | 181 | 1131 | 706 | 389 | 135 | 969 | 542 | 97 |
80 | 310 | 190 | 1147 | 143 | 983 | 99 | |||
100 | 355 | 194 | 1155 | 163 | 991 | 109 | |||
125 | 425 | 256 | 1588 | 1022 | 305 | 1305 | 739 | 218 | |
150 | 460 | 266 | 1608 | 331 | 1325 | 244 | |||
200 | 560 | 289 | 1659 | 445 | 1376 | 358 |
中溫型
公稱 | L | H2 | 帶手輪 | 不帶手輪 | |||||
H | H1 | H3 | 重量kg | H | H1 | 重量kg | |||
20 | 180 | 53 | 813 | 447 | 222 | 43 | 725 | 359 | 30 |
25 | 190 | 111 | 883 | 52 | 795 | 39 | |||
32 | 210 | 117 | 895 | 54 | 807 | 41 | |||
40 | 230 | 131 | 1036 | 570 | 280 | 90 | 929 | 463 | 66 |
50 | 255 | 146 | 1066 | 95 | 969 | 71 | |||
65 | 285 | 181 | 1296 | 706 | 389 | 145 | 1132 | 542 | 101 |
80 | 310 | 190 | 1310 | 155 | 1146 | 111 | |||
100 | 355 | 194 | 1318 | 172 | 1154 | 128 | |||
125 | 425 | 256 | 1803 | 1022 | 327 | 1520 | 739 | 240 | |
150 | 460 | 266 | 1823 | 356 | 1540 | 269 | |||
200 | 560 | 289 | 1874 | 464 | 1591 | 377 |
低溫型
公稱通徑 | L | H2 | H3 | -100℃ | -200℃ | -250℃ | |||||||||
帶手輪 | 不帶手輪 | 帶手輪 | 不帶手輪 | 帶手輪 | 不帶手輪 | ||||||||||
H1 | H | H1 | H | H1 | H | H1 | H | H1 | H | H1 | H | ||||
20 | 180 | 53 | 222 | 500 | 1127 | 500 | 1039 | 700 | 1237 | 700 | 1239 | 900 | 1527 | 900 | 1439 |
25 | 190 | 111 | 500 | 1181 | 500 | 1093 | 700 | 1381 | 700 | 1293 | 900 | 1581 | 900 | 1491 | |
32 | 210 | 117 | 500 | 1193 | 500 | 1105 | 700 | 1393 | 700 | 1305 | 900 | 1593 | 900 | 1505 | |
40 | 230 | 131 | 280 | 500 | 1310 | 500 | 1203 | 700 | 1510 | 700 | 1403 | 900 | 1710 | 900 | 1603 |
50 | 255 | 146 | 500 | 1335 | 500 | 1228 | 700 | 1535 | 700 | 1428 | 900 | 1735 | 900 | 1628 | |
65 | 285 | 181 | 600 | 1554 | 600 | 1447 | 800 | 1754 | 800 | 1647 | 1000 | 1954 | 1000 | 1847 | |
80 | 310 | 190 | 600 | 1565 | 600 | 1458 | 800 | 1765 | 800 | 1658 | 1000 | 1965 | 1000 | 1858 | |
100 | 355 | 194 | 600 | 1569 | 600 | 1462 | 800 | 1769 | 800 | 1662 | 1000 | 1769 | 1000 | 1862 | |
125 | 425 | 256 | 378 | 700 | 1942 | 700 | 1809 | 900 | 2142 | 900 | 2009 | 1100 | 2342 | 1100 | 2209 |
150 | 460 | 266 | 700 | 1952 | 700 | 1819 | 900 | 2152 | 900 | 2019 | 1100 | 2352 | 1100 | 2219 | |
200 | 560 | 289 | 700 | 1982 | 700 | 1849 | 900 | 2182 | 900 | 2049 | 1100 | 2382 | 1100 | 2249 |
良好的品質、優良的服務 奇高為你創造更多價值!
“奇高閥門”的期望,不斷提升服務質量,精益求精,“真誠的服務”是“奇高”永恒的主題。“奇高”嚴格按照IS09001-2000 質量體系認證要求,質量嚴格把關, 責任到人,確保生產、銷售、服務的健康運行。加強與用戶溝通,竭誠為廣大客戶提供優良產品,貼心服務。特此我廠做出以下承諾:
產品標準:
產品嚴格按照中國GB、HG 標準和美國API等標準設計、制造、驗收。密封面硬度達到國家規定要求,寬度超過國家標準。
售前服務:
產品介紹,技術交流,非標產品設計,疑難解答。
售中服務:
守信合同,及時供貨,隨時保持與客戶聯系。 對特殊或復制的產品,我廠安排技術人員對用戶進行產品使用、故障排除
售后服務:
1、“奇高”牌產品品質期為自出廠起12個月,實行“三包”服務(包退、包換、保修)。
2、產品在使用中我廠定期組織技術、質檢人員進行訪問,征詢用戶對產品質量、 使用狀況、改進意見等方面的反饋, 以便進一步提高產品質量。
3、對用戶投訴質量問題,快速作出反應,售后服務人員在24-36小時(省外48小時)趕赴現場。
4、對售后服務,要求用戶填寫服務后的質量反饋信息表,并作出鑒定意見,以便提高奇高的服務質量。
1、客戶如對產品有特殊要求,須在訂貨合同中提供以下說明:
a、結構長度;
b、連接形式;
c、公稱直徑、全通徑、縮徑、管道尺寸;
d、運行介質及溫度、壓力范圍;
e、試驗、檢驗標準及其他要求
2、本廠可根據客戶特定要求配置各類驅動裝置。
3、如由客戶提供確定的閥門類型和型號時,客戶應正確說明其型號的含義和要求,在供需雙方理解一致的條件下簽訂合同。
4、期貨、訂貨的客戶請先來電函詳細告訴所需的閥門型號、規格、數量以及交貨時間、地點,并按總的30%預定金或全額貨款及時匯入我廠帳戶,其余貨款待發貨前匯入,以便及時安排發貨。
訂單流程:
1、客戶采購清單傳真至021-33872143,或來電咨詢 021-33872141
2、收到客戶采購清單,為客戶提供閥門型號選型與報價(價格清單)。
3、具體商定:交貨期、特殊要求等事宜。
訂貨須知:
1、客戶如對產品有特殊要求,須在訂貨合同中提供以下說明:
|
|||||
|
|||||
2、本廠可根據客戶特定要求配置各類驅動裝置。
|
|||||
3、如由客戶提供確定的閥門類型和型號時,客戶應正確說明其型號的含義和要求,在供需雙方理解一致的條件下簽訂合同。
|
|||||
4、期貨、訂貨的客戶請先來電函詳細告訴所需的閥門型號、規格、數量以及交貨時間、地點,并按總的30%預定金或全額貨款及時匯入我廠賬戶, 其余貨款待發貨前匯入,以便及時安排發貨。
|
售中服務:
守信合同,及時供貨,隨時保持與客戶聯系。
對特殊或復制的產品,我廠安排技術人員對用戶進行產品使用、故障排除
售后服務:
1、“奇高”產品品質期為自出廠起12個月,實行“三包”服務(包退、包換、保修)。
2、產品在使用中我廠定期組織技術、質檢人員進行訪問,征詢用戶對產品質量、使用狀況、改進意見等方面的反饋,
以便進一步提高產品質量。
3、對用戶投訴質量問題,快速作出反應,售后服務人員在24-36小時(省外48小時)趕赴現場。
4、對售后服務,要求用戶填寫服務后的質量反饋信息表,并作出鑒定意見,以便提高“奇高”的服務質量。
聲明 |
|