JD745X多功能水泵控制閥

- 銷售:021-32051999
- 銷售:021-32050777
- 傳真:021-66099555
詳情介紹
- 產品介紹
- 服務承諾
- 訂貨流程
JD745X多功能水泵控制閥由主閥和調節閥及接管系統組成,閥體采用直流式閥體,主閥控制室為膜片式或活塞式的雙控制室結構,控制室比一般水力控制閥增加了一個,增加了對主閥的控制功能,實現了對水泵出口的緩慢開啟、全開、緩閉、截止等多功能控制,實現了一個閥門、一次調節對水泵出口的多功能控制。
本產品的接管系統采用調節閥控制,通過設定調節閥的開度,可方便實現需要的各項控制參數,如主閥的開啟速度、緩閉速度等等。
工作原理
當水泵起動起后,水壓作用于主閥閥盤下面和控制室下腔,此壓力使主閥開啟,控制室上腔的水經過調節閥B緩緩排到出口端,主閥緩緩開啟。設定調節閥的開度可合適地主閥開啟速度。當水泵停止工作后,進口端水壓迅速下降,在自重、彈簧壓力作用下快速關閉大部分開度,防止了水倒流余下的開度由控制室上腔的水壓和下腔水壓聯合作用下緩緩關閉,關閉速度減慢形成了緩沖,防止壓力劇增。
設定調節閥A、B的開度和開度比可合適的閥門啟閉速度。
工作特點
1、防止水錘效果好,將緩開、止回速閉、緩閉等清理水錘的技術,防止開泵不錘和停泵倒流與水錘對供水管路和水泵的損害。
2、操作方便,無需為閥門另配電控系統,閥門隨水泵的開啟與停止自動并按順序完成控制功能。通過設定調節閥開度可合適的控制參數。
3、閥體采用了全通道、直流式、流線型設計。水力損失小,節能效果好。
功能與用途
本閥門安裝在水泵出口端,順序實現緩慢開啟、全開、速閉、緩閉等功能。
本產品用于高層建筑給水系統和其它給水系統的水泵出口管路上,防止和減弱水泵啟閉時管線的水錘水擊,防止水倒流保護水泵,維護管路。
主要技術參數
公稱壓力(Mpa) | 殼體試驗壓力(MPa) | 密封試驗壓力(MPa) | 調壓范圍(MPa) | 緩閉時間(S) | 低動作壓力(MPa) | 適用介質 | 介質溫度(℃) |
1.0 | 1.5 | 1.1 | 0.09-0.8 | 3-60 | ≥0.07 | 水 | 0-80 |
1.6 | 2.4 | 1.76 | 0.15-1.4 | ||||
2.5 | 3.75 | 2.75 | 0.2-2.0 |
主要零件材料
零件名稱 | 零件材料 |
閥體 閥蓋 | WCB |
閥座 閥盤 | 銅合金/2Cr13 |
密封圈 O型圈 | 丁腈橡膠 |
閥桿 | 2Cr13 |
彈簧 | 50CrVA |
缸套 活塞(活塞型) | 2Cr13 |
膜片(膜片型) | 夾織物丁腈橡膠 |
調節閥 球閥 | 銅合金 |
過濾器 | 不銹鋼 |
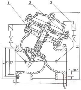
部件列表:
1、主閥2、流量調節閥3、過濾器
主要外形連接尺寸
DN | L | H | D | D1 | b | D2 | n-Φd | ||||||||||
mm | mm | PN1.0 | PN1.6 | PN2.5 | PN1.0 | PN1.6 | PN2.5 | PN1.0 | PN1.6 | PN2.5 | PN1.0 | PN1.6 | PN2.5 | PN1.0 | PN1.6 | PN2.5 | |
40 | 240 | 270 | 150 | 150 | 150 | 110 | 110 | 110 | 18 | 18 | 18 | 88 | 88 | 84 | 4-17.5 | 4-17.5 | 4-18 |
50 | 240 | 270 | 165 | 165 | 165 | 125 | 125 | 125 | 20 | 20 | 20 | 102 | 102 | 99 | 4-17.5 | 4-17.5 | 4-18 |
65 | 270 | 340 | 185 | 185 | 185 | 145 | 145 | 145 | 20 | 20 | 22 | 122 | 122 | 118 | 4-17.5 | 4-17.5 | 8-18 |
80 | 300 | 400 | 200 | 200 | 200 | 160 | 160 | 160 | 22 | 22 | 24 | 133 | 133 | 132 | 8-17.5 | 8-17.5 | 8-18 |
100 | 350 | 440 | 220 | 220 | 235 | 180 | 180 | 190 | 24 | 24 | 24 | 158 | 158 | 156 | 8-17.5 | 8-17.5 | 8-22 |
125 | 400 | 460 | 250 | 250 | 270 | 210 | 210 | 220 | 26 | 26 | 26 | 184 | 184 | 184 | 8-17.5 | 8-17.5 | 8-26 |
150 | 480 | 500 | 285 | 285 | 300 | 240 | 240 | 250 | 26 | 26 | 28 | 212 | 212 | 211 | 8-22 | 8-22 | 8-26 |
200 | 500 | 640 | 340 | 340 | 360 | 295 | 295 | 310 | 28 | 30 | 30 | 268 | 268 | 274 | 8-22 | 12-22 | 12-26 |
250 | 605 | 690 | 395 | 405 | 425 | 350 | 355 | 370 | 28 | 32 | 32 | 320 | 320 | 330 | 12-22 | 12-26 | 12-30 |
300 | 700 | 820 | 445 | 460 | 485 | 400 | 410 | 430 | 28 | 32 | 34 | 370 | 370 | 389 | 12-22 | 12-26 | 16-30 |
350 | 800 | 950 | 505 | 520 | 555 | 460 | 470 | 490 | 30 | 36 | 38 | 430 | 430 | 448 | 16-22 | 16-26 | 16-33 |
400 | 900 | 1400 | 565 | 580 | 620 | 515 | 525 | 550 | 32 | 38 | 40 | 482 | 482 | 503 | 16-26 | 16-30 | 16-36 |
450 | 1000 | 1580 | 615 | 640 | 670 | 565 | 585 | 600 | 32 | 40 | 42 | 532 | 550 | 548 | 20-26 | 20-30 | 20-36 |
500 | 1100 | 1600 | 670 | 715 | 730 | 620 | 650 | 660 | 34 | 42 | 44 | 585 | 585 | 609 | 20-26 | 20-33 | 20-36 |
600 | 1300 | 1815 | 780 | 840 | 845 | 725 | 770 | 770 | 36 | 48 | 46 | 685 | 685 | 720 | 20-30 | 20-36 | 20-39 |
700 | 1400 | 2040 | 895 | 910 | 960 | 840 | 840 | 845 | 40 | 54 | 50 | 800 | 800 | 820 | 24-30 | 24-36 | 24-42 |
800 | 1500 | 2350 | 1015 | 1025 | 1085 | 950 | 950 | 990 | 44 | 58 | 54 | 905 | 905 | 925 | 24-33 | 24-39 | 24-48 |
900 | 1700 | 2606 | 1115 | 1125 | 1185 | 1050 | 1050 | 1090 | 46 | 62 | 58 | 1005 | 1005 | 1028 | 28-33 | 28-39 | 28-48 |
1000 | 1900 | 2765 | 1230 | 1255 | 1320 | 1160 | 1170 | 1210 | 50 | 66 | 62 | 1110 | 1110 | 1140 | 28-36 | 28-42 | 28-56 |
1200 | 2050 | 2950 | 1455 | 1485 | 1530 | 1380 | 1390 | 1420 | 56 | 52 | 70 | 1330 | 1328 | 1350 | 32-39 | 32-48 | 32-55 |
1400 | 2200 | 3180 | 1675 | 1685 | 1755 | 1590 | 1590 | 1640 | 62 | 58 | 76 | 1530 | 1530 | 1560 | 36-42 | 36-48 | 36-60 |
1600 | 2400 | 3400 | 1915 | 1930 | 1955 | 1820 | 1820 | 1860 | 68 | 64 | 84 | 1750 | 1750 | 1780 | 40-48 | 40-55 | 40-60 |
安裝示意圖
良好的品質、優良的服務 奇高為你創造更多價值!
“奇高閥門”的期望,不斷提升服務質量,精益求精,“真誠的服務”是“奇高”永恒的主題?!捌娓摺眹栏癜凑?span lang="EN-US">IS09001-2000 質量體系認證要求,質量嚴格把關, 責任到人,確保生產、銷售、服務的健康運行。加強與用戶溝通,竭誠為廣大客戶提供優良產品,貼心服務。特此我廠做出以下承諾:
產品標準:
產品嚴格按照中國GB、HG 標準和美國API等標準設計、制造、驗收。密封面硬度達到國家規定要求,寬度超過國家標準。
售前服務:
產品介紹,技術交流,非標產品設計,疑難解答。
售中服務:
守信合同,及時供貨,隨時保持與客戶聯系。 對特殊或復制的產品,我廠安排技術人員對用戶進行產品使用、故障排除
售后服務:
1、“奇高”牌產品品質期為自出廠起12個月,實行“三包”服務(包退、包換、保修)。
2、產品在使用中我廠定期組織技術、質檢人員進行訪問,征詢用戶對產品質量、 使用狀況、改進意見等方面的反饋, 以便進一步提高產品質量。
3、對用戶投訴質量問題,快速作出反應,售后服務人員在24-36小時(省外48小時)趕赴現場。
4、對售后服務,要求用戶填寫服務后的質量反饋信息表,并作出鑒定意見,以便提高奇高的服務質量。
1、客戶如對產品有特殊要求,須在訂貨合同中提供以下說明:
a、結構長度;
b、連接形式;
c、公稱直徑、全通徑、縮徑、管道尺寸;
d、運行介質及溫度、壓力范圍;
e、試驗、檢驗標準及其他要求
2、本廠可根據客戶特定要求配置各類驅動裝置。
3、如由客戶提供確定的閥門類型和型號時,客戶應正確說明其型號的含義和要求,在供需雙方理解一致的條件下簽訂合同。
4、期貨、訂貨的客戶請先來電函詳細告訴所需的閥門型號、規格、數量以及交貨時間、地點,并按總的30%預定金或全額貨款及時匯入我廠帳戶,其余貨款待發貨前匯入,以便及時安排發貨。
訂單流程:
1、客戶采購清單傳真至021-33872143,或來電咨詢 021-33872141
2、收到客戶采購清單,為客戶提供閥門型號選型與報價(價格清單)。
3、具體商定:交貨期、特殊要求等事宜。
訂貨須知:
1、客戶如對產品有特殊要求,須在訂貨合同中提供以下說明:
|
|||||
|
|||||
2、本廠可根據客戶特定要求配置各類驅動裝置。
|
|||||
3、如由客戶提供確定的閥門類型和型號時,客戶應正確說明其型號的含義和要求,在供需雙方理解一致的條件下簽訂合同。
|
|||||
4、期貨、訂貨的客戶請先來電函詳細告訴所需的閥門型號、規格、數量以及交貨時間、地點,并按總的30%預定金或全額貨款及時匯入我廠賬戶, 其余貨款待發貨前匯入,以便及時安排發貨。
|
售中服務:
守信合同,及時供貨,隨時保持與客戶聯系。
對特殊或復制的產品,我廠安排技術人員對用戶進行產品使用、故障排除
售后服務:
1、“奇高”產品品質期為自出廠起12個月,實行“三包”服務(包退、包換、保修)。
2、產品在使用中我廠定期組織技術、質檢人員進行訪問,征詢用戶對產品質量、使用狀況、改進意見等方面的反饋,
以便進一步提高產品質量。
3、對用戶投訴質量問題,快速作出反應,售后服務人員在24-36小時(省外48小時)趕赴現場。
4、對售后服務,要求用戶填寫服務后的質量反饋信息表,并作出鑒定意見,以便提高“奇高”的服務質量。
聲明 |
|